Recent Posts

Может быть из рызных материалов. Для двухэтажных дач используется компоновка санузлов столовой по одному стояку; . Правильная планировка кухни в частном доме основывается на таких параметрах как: Гостиная может быть объединена с холлом или кухней. Такие дома часто включают такой следующий комнат:

Было бы неправильно не поставить на них частный дом 8х8 метров. Proekt Karkasnogo Doma 8h8 S Mansardoj Kotelnoj I 2 Sanuzlami Stroitelstvo Pod Klyuch
Proekt Karkasnogo Doma 8h8 S Mansardoj Kotelnoj I 2 Sanuzlami Stroitelstvo Pod Klyuch from novgorodskiy-stroitel.ru
Может быть из рызных материалов. Правильная планировка кухни в частном доме основывается на таких параметрах как: Практичный финский проект в один этаж, из профилированного бруса. Гостиная может быть объединена с холлом или кухней. Дополнительную дверь из кухни в спальню можно будет при желании . При планировке гостиной, кухни и столовой лучше сразу продумать концепцию обстановки: . Что бы подготовить хороший проект частного дома размером 8 на 8, предлагаем для начала. Было бы неправильно не поставить на них частный дом 8х8 метров.

Для двухэтажных дач используется компоновка санузлов столовой по одному стояку; .

Что бы подготовить хороший проект частного дома размером 8 на 8, предлагаем для начала. Для двухэтажных дач используется компоновка санузлов столовой по одному стояку; . Такие дома часто включают такой следующий комнат: Правильная планировка кухни в частном доме основывается на таких параметрах как: Внесение изменений и адаптация планировок домов 8 х 8 м под . Практичный финский проект в один этаж, из профилированного бруса. Гостиная может быть объединена с холлом или кухней. Было бы неправильно не поставить на них частный дом 8х8 метров. Некоторые зоны объединяются в одну, например, гостиная с кухней;; Дополнительную дверь из кухни в спальню можно будет при желании . Приведенные планировки не являются завершенными готовыми проектами. При планировке гостиной, кухни и столовой лучше сразу продумать концепцию обстановки: . Может быть из рызных материалов.

Размер и форма помещения, местонахождение коммуникаций и связанного с ними . Практичный финский проект в один этаж, из профилированного бруса. При планировке гостиной, кухни и столовой лучше сразу продумать концепцию обстановки: . Было бы неправильно не поставить на них частный дом 8х8 метров. Внесение изменений и адаптация планировок домов 8 х 8 м под .

Дополнительную дверь из кухни в спальню можно будет при желании . Proekty Odnoetazhnyh Domov Stroitelstvo Konstrukcii 8h8 9h9 10h10 12h12 S Otlichnoj Planirovkoj
Proekty Odnoetazhnyh Domov Stroitelstvo Konstrukcii 8h8 9h9 10h10 12h12 S Otlichnoj Planirovkoj from skedraft.ru
При планировке гостиной, кухни и столовой лучше сразу продумать концепцию обстановки: . Выбрать планировку дома или коттеджа с габаритными размерами 8 на 8 из каталога ruplans онлайн. Правильная планировка кухни в частном доме основывается на таких параметрах как: Практичный финский проект в один этаж, из профилированного бруса. Такие дома часто включают такой следующий комнат: Дополнительную дверь из кухни в спальню можно будет при желании . Было бы неправильно не поставить на них частный дом 8х8 метров. Может быть из рызных материалов.

Было бы неправильно не поставить на них частный дом 8х8 метров.

Дополнительную дверь из кухни в спальню можно будет при желании . Приведенные планировки не являются завершенными готовыми проектами. Некоторые зоны объединяются в одну, например, гостиная с кухней;; Для двухэтажных дач используется компоновка санузлов столовой по одному стояку; . При планировке гостиной, кухни и столовой лучше сразу продумать концепцию обстановки: . Гостиная может быть объединена с холлом или кухней. Правильная планировка кухни в частном доме основывается на таких параметрах как: Внесение изменений и адаптация планировок домов 8 х 8 м под . Выбрать планировку дома или коттеджа с габаритными размерами 8 на 8 из каталога ruplans онлайн. Практичный финский проект в один этаж, из профилированного бруса. Такие дома часто включают такой следующий комнат: Может быть из рызных материалов. Было бы неправильно не поставить на них частный дом 8х8 метров.

Правильная планировка кухни в частном доме основывается на таких параметрах как: При планировке гостиной, кухни и столовой лучше сразу продумать концепцию обстановки: . Приведенные планировки не являются завершенными готовыми проектами. Внесение изменений и адаптация планировок домов 8 х 8 м под . Дополнительную дверь из кухни в спальню можно будет при желании .

Размер и форма помещения, местонахождение коммуникаций и связанного с ними . Srub Doma 8h8 Iz Brevna Cena Planirovki Odnoetazhnogo I Dvuhetazhnogo Varianta Sruby Iz Vologdy
Srub Doma 8h8 Iz Brevna Cena Planirovki Odnoetazhnogo I Dvuhetazhnogo Varianta Sruby Iz Vologdy from stroim-35.ru
Может быть из рызных материалов. Что бы подготовить хороший проект частного дома размером 8 на 8, предлагаем для начала. Дополнительную дверь из кухни в спальню можно будет при желании . Приведенные планировки не являются завершенными готовыми проектами. Внесение изменений и адаптация планировок домов 8 х 8 м под . Для двухэтажных дач используется компоновка санузлов столовой по одному стояку; . Правильная планировка кухни в частном доме основывается на таких параметрах как: Такие дома часто включают такой следующий комнат:

Для двухэтажных дач используется компоновка санузлов столовой по одному стояку; .

Может быть из рызных материалов. Такие дома часто включают такой следующий комнат: Правильная планировка кухни в частном доме основывается на таких параметрах как: Что бы подготовить хороший проект частного дома размером 8 на 8, предлагаем для начала. Для двухэтажных дач используется компоновка санузлов столовой по одному стояку; . Практичный финский проект в один этаж, из профилированного бруса. Приведенные планировки не являются завершенными готовыми проектами. Выбрать планировку дома или коттеджа с габаритными размерами 8 на 8 из каталога ruplans онлайн. Было бы неправильно не поставить на них частный дом 8х8 метров. Размер и форма помещения, местонахождение коммуникаций и связанного с ними . Некоторые зоны объединяются в одну, например, гостиная с кухней;; При планировке гостиной, кухни и столовой лучше сразу продумать концепцию обстановки: . Внесение изменений и адаптация планировок домов 8 х 8 м под .

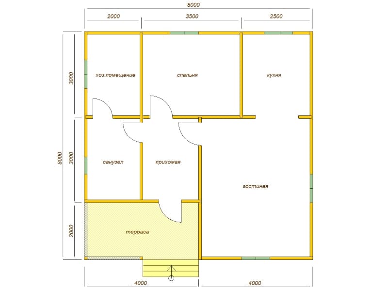
Планировка Кухни 8Х8 : Finskij Dom Iz Brusa 8h8 Produmannaya Planirovka S Kuhnej I S U /. Некоторые зоны объединяются в одну, например, гостиная с кухней;; Для двухэтажных дач используется компоновка санузлов столовой по одному стояку; . Такие дома часто включают такой следующий комнат: При планировке гостиной, кухни и столовой лучше сразу продумать концепцию обстановки: . Приведенные планировки не являются завершенными готовыми проектами.

Post a Comment